Не нашли нужный товар? Позвоните или напишите нам и мы обязательно подберем для Вас решение.
Договор заключается в момент оплаты Покупателем товара ТОЛЬКО в ОФЛАЙН-МАГАЗИНЕ. Делая предварительный заказ, Покупатель заверяет, что ознакомился и согласен с Политикой компании, она ему ясна и понятна.Топка EdilKamin Tekno 2 N IC правая/левая
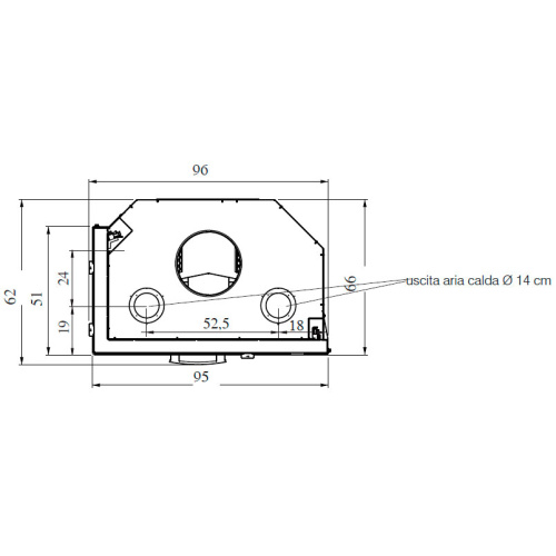
Конструкция и особенности печи
Более 55 лет Итальянская компания Edilkamin является лидером в сфере отопления. Дровяные топки Edilkamin различаются разнообразием форм и размеров. В производстве используются высокотехнологические решения и запатентованные технологии.
Топка EdilKamin Tekno 2 N IC это стальная топка с чугунной футеровкой. Боковое стекло / правое или левое/ под углом в 90 градусов. Отличительные особенности данной серии топок это плавный подъемный механизм, широкое прямое стекло. Мощность: 15 кВт.
Дымоход, огнезащита и комплектующие
Для топки необходим дымоход диаметром 200мм. Его можно подобрать в разделе дымоходы.
Для любой топки необходимо предусмотреть облицовку. Рекомендуем использовать силикат кальция.
Также могут понадобиться важные мелочи.
Характеристики
|
Производитель
|
EdilKamin (Италия) |
|
Высота, мм
|
1550 |
|
Глубина, мм
|
635 |
|
Ширина, мм
|
950 |
|
Диаметр дымохода, мм
|
200 |
|
Вес, кг
|
248 |
|
Вид топки (способ открывания)
|
подъемный механизм |
|
Тип и форма стекла
|
Г-образное |
Отправляем продукцию по всей территории РФ.
Ознакомиться с условиями оплаты и получения товара Вы можете на странице «Доставка и оплата».
* Рассчитывается ориентировочная стоимость доставки от ПВЗ города отправления до ПВЗ города получения.
Конечная стоимость определяется после приема груза на терминале компании и зависит от точных габаритов сборки (длина*ширина*высота, вес), типа груза (наименование товара во вложении), вида отгрузки (отгрузка курьеру или в ПВЗ), хрупкости вложения, выбора услуги страхования груза, наличия обязательной обрешетки и дополнительной упаковки, согласно условий и требований к перевозке грузов конкретной ТК.
Вы можете воспользоваться услугами монтажа купленных у нас товаров. Для этого при оформлении заказа на сайте в поле «Нужен монтаж» нужно выбрать пункт «Да».
Также по вопросам монтажа Вы можете проконсультироваться по указанным на сайте телефонам или отправить запрос через любую из расположенных на сайте форм обратной связи.
- Можно доверять! Компания «КПД» работает с 2004 года.
- Работаем только с проверенными бригадами монтажников.
- Произведем расчет и установку любого оборудования из наших магазинов.
- Гарантируем качество выполненных работ.
- Примеры наших работ (смотреть).







