Печь Kratki ПРО (PRO) КАРИ (KARI) 80/W тоннель (tunel)
Не нашли нужный товар? Позвоните или напишите нам и мы обязательно подберем для Вас решение.
Договор заключается в момент оплаты Покупателем товара ТОЛЬКО в ОФЛАЙН-МАГАЗИНЕ. Делая предварительный заказ, Покупатель заверяет, что ознакомился и согласен с Политикой компании, она ему ясна и понятна.Дымоход, огнезащита и комплектующие
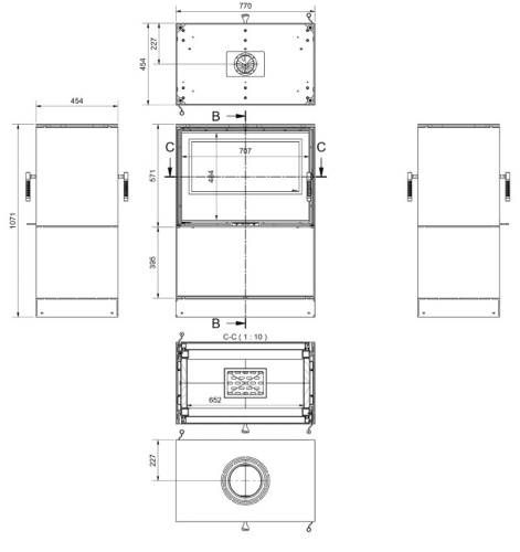
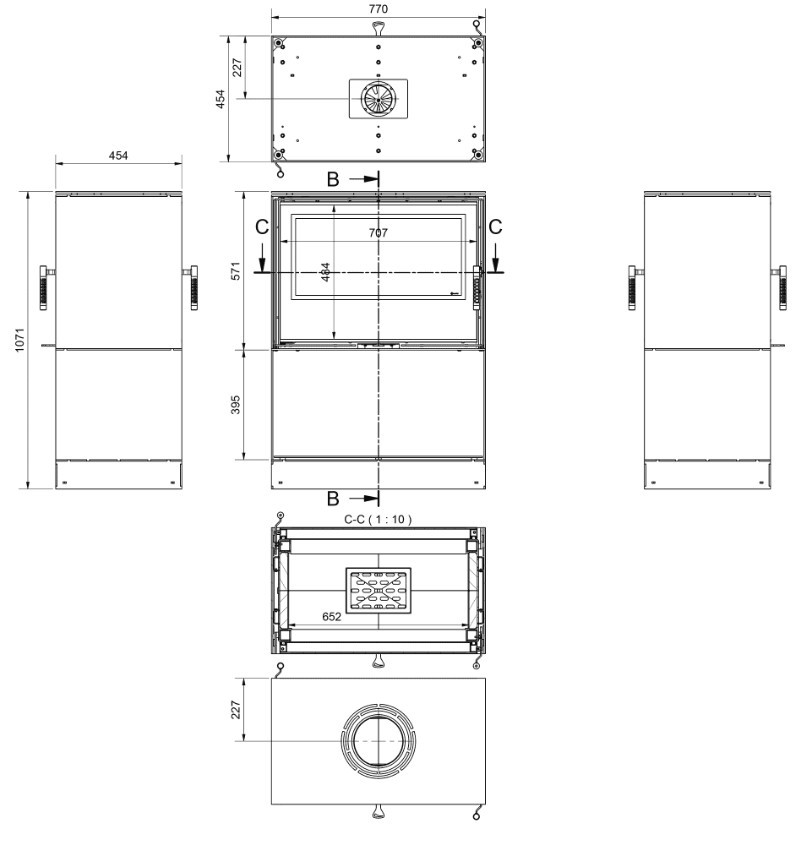
Печь КАРИ (KARI) 80/W отличается от модели КАРИ (KARI) 80 наличием большого отделения для хранения дров, за счет единой конструкции Кари 80/W сочетает и современный кассетный камин и дровник.
Ширина печи 80 см, на дверце установлено стекло с трафаретной печатью.
Перфорированная ручка черного цвета, не нагревается, можно выбрать модель с доводчиком двери или без него.
Внутри теплоаккумулирующие элементы футеровки Termotec, на выбор черного или белого цвета.
Подача воздуха происходит через внешний патрубок, опционально возможно подключить воздух из вне.
Распределение воздуха по камере сгорания и его регулирование осуществляется при помощи всего одного регулятора.
Подключение дымохода у линейки печей Кари только сверху.
Гарантия производителя Kratki ПРО (PRO) (Польша) 10 лет, при соблюдении необходимых условий монтажа и дальнейшего обслуживания.
Для печи необходим дымоход диаметром 180 мм. Его можно подобрать в разделе дымоходы. Рекомендуем обратить внимание, что первыми элементами от печи могут быть дымоходы черного цвета из котловой стали,которыеможно подобрать в разделе дымоходы КПД
Дымоход, огнезащита и комплектующие
Не забудьте про огнезащиту стен.
Под печь необходимо предусмотреть негорючее основание. Рекомендуем использовать листы под печь черного цвета.
Также могут понадобиться важные мелочи.
Характеристики
|
Производитель
|
Kratki(Польша) |
|
Высота, мм
|
1168 |
|
Глубина, мм
|
500 |
|
Ширина, мм
|
770 |
|
Диаметр дымохода, мм
|
180 |
|
Выход дымохода
|
сверху |
|
Вес, кг
|
220 |
|
Материал корпуса
|
сталь |
|
Мощность, кВт
|
12 |
|
Обьем помещения, м³
|
до 200 |
Отправляем продукцию по всей территории РФ.
Ознакомиться с условиями оплаты и получения товара Вы можете на странице «Доставка и оплата».
* Рассчитывается ориентировочная стоимость доставки от ПВЗ города отправления до ПВЗ города получения.
Конечная стоимость определяется после приема груза на терминале компании и зависит от точных габаритов сборки (длина*ширина*высота, вес), типа груза (наименование товара во вложении), вида отгрузки (отгрузка курьеру или в ПВЗ), хрупкости вложения, выбора услуги страхования груза, наличия обязательной обрешетки и дополнительной упаковки, согласно условий и требований к перевозке грузов конкретной ТК.
Вы можете воспользоваться услугами монтажа купленных у нас товаров. Для этого при оформлении заказа на сайте в поле «Нужен монтаж» нужно выбрать пункт «Да».
Также по вопросам монтажа Вы можете проконсультироваться по указанным на сайте телефонам или отправить запрос через любую из расположенных на сайте форм обратной связи.
- Можно доверять! Компания «КПД» работает с 2004 года.
- Работаем только с проверенными бригадами монтажников.
- Произведем расчет и установку любого оборудования из наших магазинов.
- Гарантируем качество выполненных работ.
- Примеры наших работ (смотреть).







